- Rathaus & Politik
- Wohnen & Leben
- Freizeit & Tourismus
- Wirtschaft & Handel
Bauleitplanung der Stadt Borken (Hessen)
Bauleitplanung der Stadt Borken (Hessen)
Bebauungsplan Nr. 3 „Sondergebiet Solar“, Gemarkung Lendorf und 26. Änderung des Flächennutzungsplanes „Sondergebiet Solar“, Gemarkung Lendorf im Parallelverfahren
Hier: Bekanntmachung der Beteiligung der Öffentlichkeit gemäß § 3 Abs. 2 Baugesetzbuch (BauGB) in der Zeit vom 13.10.2025 bis einschließlich 14.11.2025
I. Anlass und Ziel
Die Stadt Borken (Hessen) beabsichtigt, die bauleitplanerischen Voraussetzungen zu schaffen, um einem privaten Vorhabenträger die Nutzung der bislang landwirtschaftlich genutzten Fläche für eine Freiflächenphotovoltaikanlage zu ermöglichen. Der Bebauungsplan soll eine Rückbauverpflichtung der Anlagen nach Aufgabe der Nutzung beinhalten. Als Folgenutzung soll die landwirtschaftliche Nutzung gem. § 9 Abs. 1 Nr. 18a BauGB festgesetzt werden.
Ziel ist die Steigerung des Anteils der erneuerbaren Energien an der Stromversorgung und Sicherung der Energieversorgung.
Mit der Errichtung und dem Betrieb der Freiflächen-Photovoltaikanlage soll eine nachhaltige Entwicklung, die die wirtschaftlichen, umweltspezifischen und vor allem die klimaverändernden Anforderungen miteinander in Einklang bringt, gewährleistet werden (vgl. § 1 Abs. 5 BauGB).
II. Bekanntmachung der öffentlichen Auslegung der Planentwürfe mit Begründung gemäß § 3 Abs. 2 BauGB
Die Stadtverordnetenversammlung der Stadt Borken (Hessen) hat am 23.09.2025 die Beteiligung der Öffentlichkeit gem. § 3 Abs. 2 BauGB und die Beteiligung der Behörden und sonstigen Träger öffentlicher Belange gem.§ 4 Abs. 2 BauGB für den Bebauungsplan Nr. 3 „Sondergebiet Solar", Gemarkung Lendorf und die 26. Änderung des Flächennutzungsplanes „Sondergebiet Solar“, Gemarkung Lendorf (Parallelverfahren) beschlossen.
Der Entwurf des Bebauungsplans Nr. 3 „Sondergebiet Solar", Gemarkung Lendorf, bestehend aus der Planzeichnung mit den textlichen Festsetzungen und der Begründung samt Umweltbericht sowie der Entwurf der 26. Änderung des Flächennutzungsplans „Sondergebiet Solar", Gemarkung Lendorf, können in der Zeit vom 13.10.2025 bis einschließlich 14.11.2025 von jedem/ jeder im Internet auf der Homepage der Stadt Borken (Hessen) unter www.borken-hessen.de (Button Bauleitplanung auf der linken Seite oder direkt: www.borken-hessen.de/wohnen-leben/bauen-und-wohnen/bauleitplanung/) eingesehen werden
Während dieser Zeit kann sich jedermann über die allgemeinen Ziele und Zwecke sowie die wesentlichen Auswirkungen der Planung unterrichten und Anregungen zu der Planung während der Auslegungsfrist schriftlich, vorzugsweise per E-Mail an die Adresse bauen@borken-hessen.de, bzw. postalisch an die Adresse: Stadtverwaltung Borken (Hessen), Am Rathaus 7, 34582 Borken (Hessen) oder mündlich, auch fernmündlich / telefonisch, zur Niederschrift vorbringen.
Die Auslegung der Planunterlagen in Papierform bei der Stadtverwaltung der Borken (Hessen) im Rathaus, Erdgeschoss, Foyer (Am Rathaus 7, 34582 Borken (Hessen)) erfolgt als ein die Veröffentlichung im Internet ergänzendes Informationsangebot. Die Einsichtnahme ist zu den allgemeinen Dienststunden
möglich. Öffnungszeiten:
Montag, Mittwoch bis Freitag von 08.00 Uhr – 12.00 Uhr
Montag und Mittwoch von 13.30 Uhr – 16.30 Uhr
Donnerstag, Bürgersprechtag von 13.30 Uhr – 18.00 Uhr
Über die vorgenannten Möglichkeiten zur Einsichtnahme im Rathaus und im Internet hinaus, senden wir Ihnen die Planunterlagen auch zu (05682 808-154 oder E-Mail: bauen@borken-hessen.de).
Es wird darauf hingewiesen, dass nicht fristgerecht abgegebene Stellungnahmen bei der Beschlussfassung über den Bebauungsplan Nr. 3 und die 26. Flächennutzungsplanänderung gemäß § 4a Abs. 5 BauGB unberücksichtigt bleiben können, sofern die Stadt deren Inhalt nicht kannte, nicht hätte kennen müssen und deren Inhalt für die Rechtmäßigkeit des Bebauungsplanes nicht von Bedeutung ist.
Den Beteiligten wird nach Prüfung der vorgebrachten Anregungen das Ergebnis der Entscheidung mitgeteilt. Auch Kinder und Jugendliche sind Teil der Öffentlichkeit.
Da das Ergebnis der Behandlung der Stellungnahmen mitgeteilt wird, ist die Angabe der Anschrift des Verfassers erforderlich.
Im Zusammenhang mit dem Datenschutz weisen wir ausdrücklich darauf hin, dass ein Bebauungsplanverfahren ein öffentliches Verfahren ist und daher in der Regel alle dazu eingehenden Stellungnahmen in öffentlichen Sitzungen beraten und entschieden werden, sofern sich nicht aus der Art der Einwände oder der betroffenen Personen ausdrückliche oder offensichtliche Einschränkungen ergeben. Soll eine Stellungnahme nur anonym behandelt werden, ist dies auf derselben eindeutig zu vermerken. Andernfalls werden die personenbezogenen Daten im Rahmen des Bauleitplanverfahrens gemäß Datenschutz-Grundverordnung (DSGVO) verarbeitet und die Beteiligten geben konkludent hierzu ihre Zustimmung.
III. Hinweise
Es wird darauf hingewiesen, dass diese Bekanntmachung auch auf der Internetseite der Stadt Borken (Hessen) unter https://www.borken-hessen.de/rathaus-politik/aktuelles/amtliche-bekanntmachungen/ öffentlich bekannt gemacht wird.
Es wird des Weiteren darauf hingewiesen, dass die Vorbereitung und Durchführung von Verfahrensschritten nach §§ 2a bis 4a BauGB einem Dritten (Planungsbüro) übertragen wurde.
Verfahren Flächennutzungsplan:
Entsprechend § 3 Abs. 3 BauGB wird darauf hingewiesen, dass eine Vereinigung im Sinne des § 4 Abs. 3 Satz 1 Nummer 2 UmwRG bei einem Rechtsbehelf nach § 7 Abs. 2 UmwRG gemäß § 7 Abs. 3 Satz 1 UmwRG mit allen Einwendungen ausgeschlossen ist, die sie im Rahmen der Auslegungsfrist nicht oder nicht rechtzeitig geltend gemacht hat, aber hätte geltend machen können.
IV. Umweltbezogene Informationen
Zur 26. Änderung des Flächennutzungsplanes und dem Bebauungsplan Nr. 3 „Sondergebiet Solar", Gemarkung Lendorf sind folgende umweltbezogenen Informationen verfügbar und abrufbar:
1. Begründung mit Umweltbericht jeweils zum Bebauungsplan Nr. 3 „Sondergebiet Solar", Gemarkung Lendorf und der 26. Änderung des Flächennutzungsplanes „Sondergebiet Solar“, Gemarkung Lendorf
Wesentliche Inhalte der Umweltberichte sind:
a) Bestandsaufnahme der einschlägigen Aspekte des derzeitigen Umweltzustandes
b) Prognose über die Entwicklung des Umweltzustandes bei Durchführung der Planung und bei Nichtdurchführung der Planung
c) Prüfung der Maßnahmen zur Vermeidung und Verringerung der nachteiligen Auswirkungen
d) Prüfung anderweitiger Planungsmöglichkeiten
Der Umweltbericht beinhaltet die verfügbaren umweltrelevanten Informationen zu den in § 1 Abs. 6 Nr. 7 BauGB aufgeführten Schutzgütern.
Eine Beschreibung und Bewertung einschließlich der Beurteilung der Eingriffswirkungen durch das Planungsvorhaben erfolgt bezüglich der nachfolgenden Schutzgüter:
• Schutzgut Fläche: Flächenverbrauch (landwirtschaftlich genutzte Fläche), Rückbauverpflichtung nach Ende der Nutzungszeit für Photovoltaik
• Schutzgut Boden: Überdachung durch Module, Veränderung Bodenwasserhaushalt, Verlust von Bodenfunktionen durch kleinflächige Versiegelung mit baulichen Anlagen
• Schutzgut Wasser: keine negativen Auswirkungen
• Schutzgut Klima/Luft: Veränderung der kleinklimatischen Situation durch Verschattung unter den Modulen, Reduzierung Kaltluftproduktion und -abfluss
•Schutzgut Pflanzen/Tiere/biologische Vielfalt: Umwandlung ackerbaulich genutzter Flächen in überwiegend durch Mahd gepflegte Grün(land)flächen, teilweise durch Solarmodule überstellt. Gemäß artenschutzrechtlicher Einschätzung (Cloos, T., BANU, 21.07.2024) kann die Frage nach dem Eintreffen der Verbotstatbestände nach § 44 Abs. 1 BNatSchG für alle geprüften Arten/Artengruppen ausgeschlossen werden. Eine Prüfung der Ausnahmevorrausetzungen gemäß § 45 Abs. 7 BNatSchG ist aus diesem Grund nicht notwendig.
• Schutzgut Landschaftsbild/Erholung: Im Nahbereich abgeschwächte Beeinträchtigung des Landschaftsbildes, Wegeverbindungen bleiben erhalten
• Schutzgut Mensch / Bevölkerung: Verlust von landwirtschaftlich genutzter Fläche, gemäß Blenndschutzgutachten kein technischer Blendschutz notwendig, keine zusätzlichen Verkehrsbelastungen
• Schutzgut Kultur- und Sachgüter: nicht betroffen
• Wechselwirkungen zwischen den Schutzgütern: Wechselwirkungen bestehen insbesondere zwischen den Schutzgütern Landschaftsbild – Mensch/Erholung, Boden – Wasser und Biotope – Tiere, Pflanzen. Eine besondere Bedeutung wird der Beeinflussung des Schutzgutes Boden zugemessen, da Wechselwirkungen mit fast allen anderen Schutzgütern bestehen.
• Kumulative Wirkungen: keine
Der Umweltbericht beinhaltet zudem Maßnahmen zur Vermeidung und Minimierung von Beeinträchtigungen, Aussagen zum Ausgleichsbedarf, Maßnahmen zur Berücksichtigung des Bodenschutzes, faunistische bzw. artenschutzrechtliche Beurteilung.
2. Umweltrelevante Informationen aus den Stellungnahmen von Behörden und sonstigen Trägern öffentlicher Belange sowie der Öffentlichkeit zu folgenden Themengebieten:
• Stellungnahme des Schwalm – Eder - Kreises
FB Bauen und Umwelt – Naturschutzbehörde: Hinweise / Anregungen zur Grünlandpflege
FB Landwirtschaft und Landentwicklung zur Alternativenprüfung, Bedenken bzgl. einer möglichen Ackernachnutzung nach Aufgabe der Nutzung für Solarenergie
• Stellungnahme des Regierungspräsidiums Kassel / Obere Landwirtschaftsbehörde mit Bedenken bzgl. einer möglichen Ackernachnutzung nach Aufgabe der Nutzung für Solarenergie (Nährstoffentzug, ggf. Entwicklung geschützter Biotope)
3. Weitere Pläne und Gutachten mit umweltbezogenen Informationen, die in die Bauleitplanung eingeflossen sind:
Cloos, T (BANU, 21.07.2024): Artenschutzrechtliche Einschätzung zum Bebauungsplan Nr. 3 "Sondergebiet Solar " der Stadt Borken in der Gemarkung Lendorf
Bofinger, Stefan (Sonnwinn, 12.05.2025): Blendgutachten PVA Borken-Lendorf

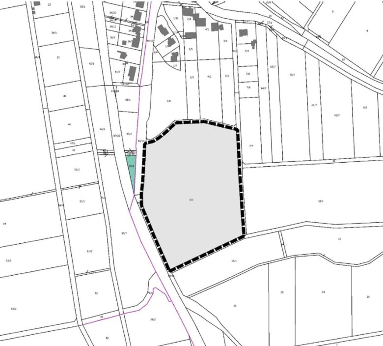
Änderungsbereich der 26. Änderung
des Flächennutzungsplanes und Geltungsbereich des Bebauungsplans Nr. 3 „Sondergebiet
Solar", Gemarkung Lendorf (genordet, ohne Maßstab). Der ca. 2.93 ha große Geltungsbereich
befindet sich südlich des Stadtteils Lendorf und umfasst Flurstück 6/1 von Flur
6 in der Gemarkung Lendorf.